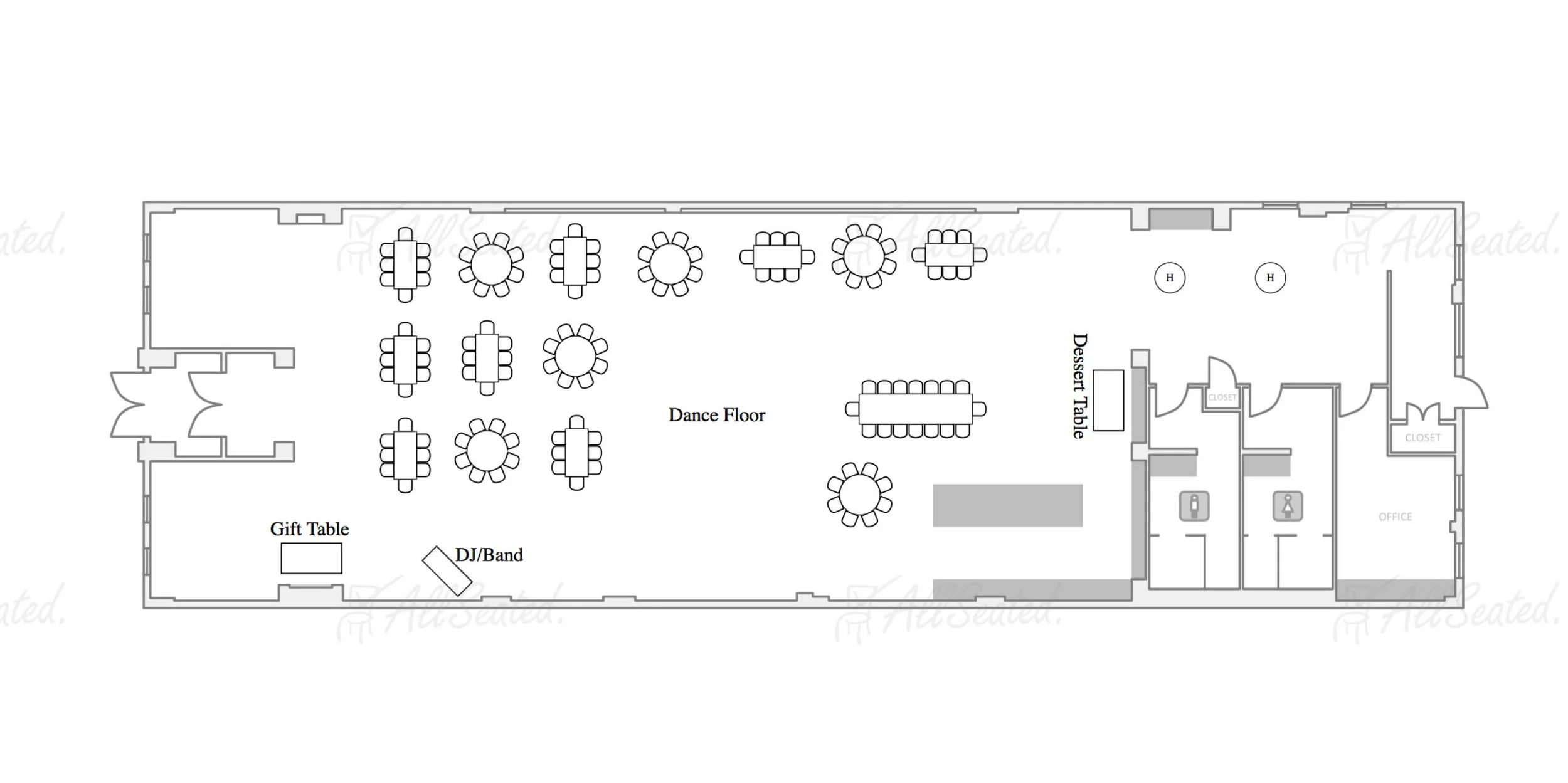
VisionLoft’s inventory of furniture for setup includes the following: 12 Wooden tables, 4 6 ft. round tables, 6 5 ft. round tables, and 4 four ft. round tables. We have 250 ghost chairs for your utilization. All soft seating in both breakout areas is included in rental. We have 8 rectangular tables available for your caterer and DJ also and is included in the setup. Black tablecloths are included for the round tables and catering tables. Tablecloths for the wooden tablecloths would need to be rented. If you opt to plan a flip of furniture between ceremony and reception, please recruit a team of movers from your guest list to assist.
1. Ceremony
1. Ceremony on Brick Wall - can add arch or other decor
3. Ceremony
4. Ceremony or Reception
5. Cabaret Ceremony or reception
6. Cabaret Ceremony or reception
7. Cabaret Ceremony or reception
8. Reception
9. Reception
10. Cabaret Style with ceremony at all with arch
11. Cabaret
12. Reception and/or Cabaret
